The Redrock
Overview
Floor Plan
- IN STOCK
- NEW ARRIVAL
© 1998-2026 Clayton. All rights reserved.
The Redrock
Overview
Floor Plan
BEFORE OPTIONS
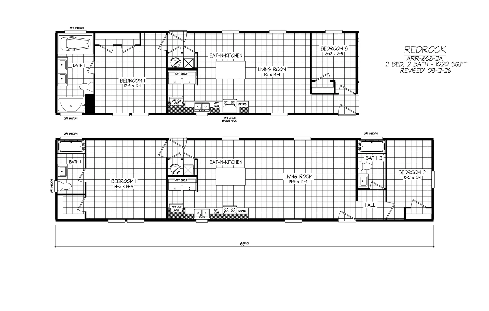
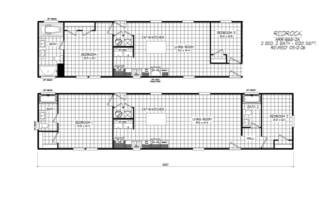
This 2-bedroom, 2-bath home offers 1,020 sq. ft. of well-designed living space with a split floorplan that provides added privacy between the primary suite and secondary bedroom. The layout features a comfortable living area that flows into a central kitchen with a center island and ample cabinet storage, creating a functional space for everyday use. Both bedrooms are well-sized, with two full bathrooms for added convenience. Thoughtful design and efficient use of space make this home a great option for everyday living.

We accept trades!
Find a new home you love? Contact us for more information about our trade-in requirements and to schedule your free trade evaluation.
Learn More† Images may show options not included in base price
Schedule A Visit
† Advertised starting sales prices are for the home only. Delivery and installation costs are not included unless otherwise stated. Starting prices shown on this website are subject to change, see your local Home Center for current and specific home and pricing information. Sales price does not include other costs such as taxes, title fees, insurance premiums, filing or recording fees, land or improvements to the land, optional home features, optional delivery or installation services, wheels and axles, community or homeowner association fees, or any other items not shown on your Sales Agreement, Retailer Closing Agreement and related documents (your SA/RCA). If you purchase a home, your SA/RCA will show the details of your purchase. Homes available at the advertised sales price will vary by retailer and state. Artists’ renderings of homes are only representations and actual home may vary. Floor plan dimensions are approximate and based on length and width measurements from exterior wall to exterior wall. We invest in continuous product and process improvement. All home series, floor plans, specifications, dimensions, features, materials, and availability shown on this website are subject to change.
Find Your Perfect Home